info@hermidapropiedades.com +598 94 339 548 2419 0353
Logo
  • Venta
  • Alquiler
  • Vivienda Promovida / Proyectos
    ANV En construcción ANV Estrena ANV Lanzamiento Proyectos En construcción Proyectos Estrena
  • Tasaciones
  • ¿Quiénes somos?
  • Contacto
    • Soriano 1506 oficina 703
    • +598 94 339 548
    • 2419 0353
    • info@hermidapropiedades.com

    Seguinos en redes sociales!

ChatsApp

Edificio BR +

ANV En construcción en La Blanqueada

  • HabitacionesMonoambiente y 1 D

Fecha de entrega

Noviembre 2025

Descripción

Edificio BR + . Inspirado en un público moderno, pensar los espacios al detalle, hacer hincapié en la calidad de las terminaciones : el placer de disfrutar del buen diseño.
Ubicado en uno de los barrios lideres del mercado y elegido sobre todo por los más jóvenes, sobre la Av. Luis Alberto de Herrera y a pasos de las avenidas 8 de octubre y Centenario. Un entorno único, que combina un barrio tradicional con una variada oferta de universidades y centros de enseñanza, hospitales y centros de salud, parques y estadios, y múltiples opciones de comercios y gastronomía.
Edifico BR + se compone de apartamentos monoambientes y de 1 dormitorio, nivel de subsuelo de estacionamientos, y una espectacular terraza con amenities de primer nivel.
Balcón o patio privado en todas las unidades , ventanas de piso a techo que disuelven el límite entre interior y exterior y aportan gran luminosidad.
Las unidades se entregan con placares en dormitorios, cocinas con placares bajo y sobre mesada, campana de humos, anafe y horno empotrados, baños equipados con espejo, extractor.
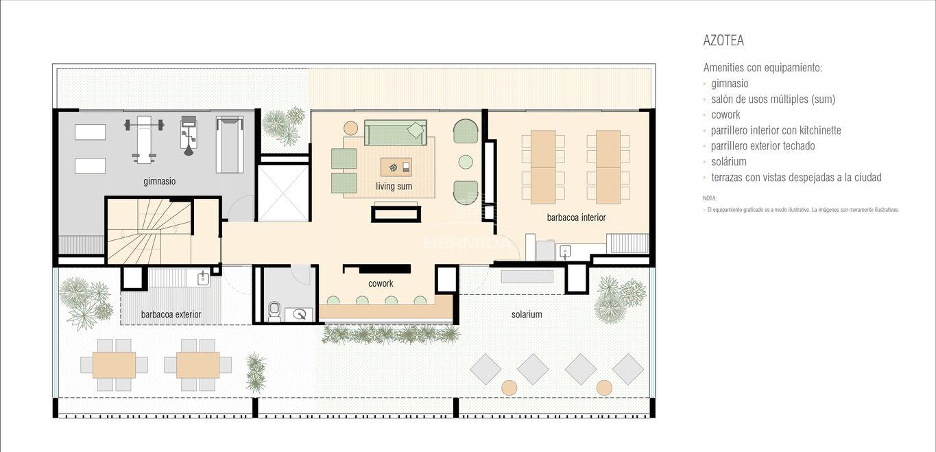
Espacio para bicicletas, salón de uso múltiples, gimnasio , solárium , cowork , parrillero interior y parrillero exterior techado, terrazas con vistas despejadas a la ciudad . Bajos gastos comunes.
Confort, bienestar , seguridad y diseño : detalles de categoría y calidad en terminaciones, control de acceso digital de ingreso al edificio y servicio de portería virtual de permanente monitoreo y seguridad 24 hrs.
Una propuesta muy interesante de inversión, para que lo vivas o lo alquiles.
Apartamentos de 1 dormitorio desde USD 112.000 Garajes opcionales desde USD 23.000
Gastos de ocupación 4 % Entrega prevista Noviembre de 2025.
Edificio promovido por Ley 18.795 con beneficios fiscales a la renta y a la compra. 100 % libre de impuestos.

IMÁGENES

Monoambiente
Habitaciones Baños Garaje Superficie Construida Superficie Terreno Superficie Total Precio
0 1 Opc. 111 29 m² USD 95.000 Ver
0 1 Opc. 006 42 m² USD 106.700 Ver
1 Dormitorio
Habitaciones Baños Garaje Superficie Construida Superficie Terreno Superficie Total Precio
1 1 Opc. 106 37 m² USD 116.000 Ver
1 1 Opc. 206 37 m² USD 118.000 Ver
1 1 Opc. 405 39 m² USD 119.000 Ver
1 1 Opc. 306 37 m² USD 121.000 Ver
1 1 Opc. 505 39 m² USD 123.000 Ver
1 1 Opc. 39 m² USD 123.500 Ver
1 1 Opc. 406 37 m² USD 125.000 Ver
1 1 Opc. 506 37 m² USD 130.000 Ver
Ver más

Conozca +

Envíanos tu consulta

Captcha
Debe ingresar el captcha
Error! debe llenar todos los campos.
captcha
Debe ingresar el captcha
Error!, no se envió su mensaje
  • Soriano 1506 oficina 703
  • +598 94 339 548
  • 2419 0353
  • info@hermidapropiedades.com

Seguinos en redes sociales!

...

¿Quiénes somos?

Somos una empresa que brinda Servicios Inmobiliarios con más de 14 años de experiencia en el mercado...

© Hermida Propiedades